| Высота1990 мм | Глубина1025 мм | Ширина1015 мм |
| Вес (без упаковки)150 кг | Длина полотна3280 мм | Максимальная высота реза420 мм |
| Максимальная толщина реза260 мм | Материал корпусанержавеющая сталь | Мощность1.5 кВт |
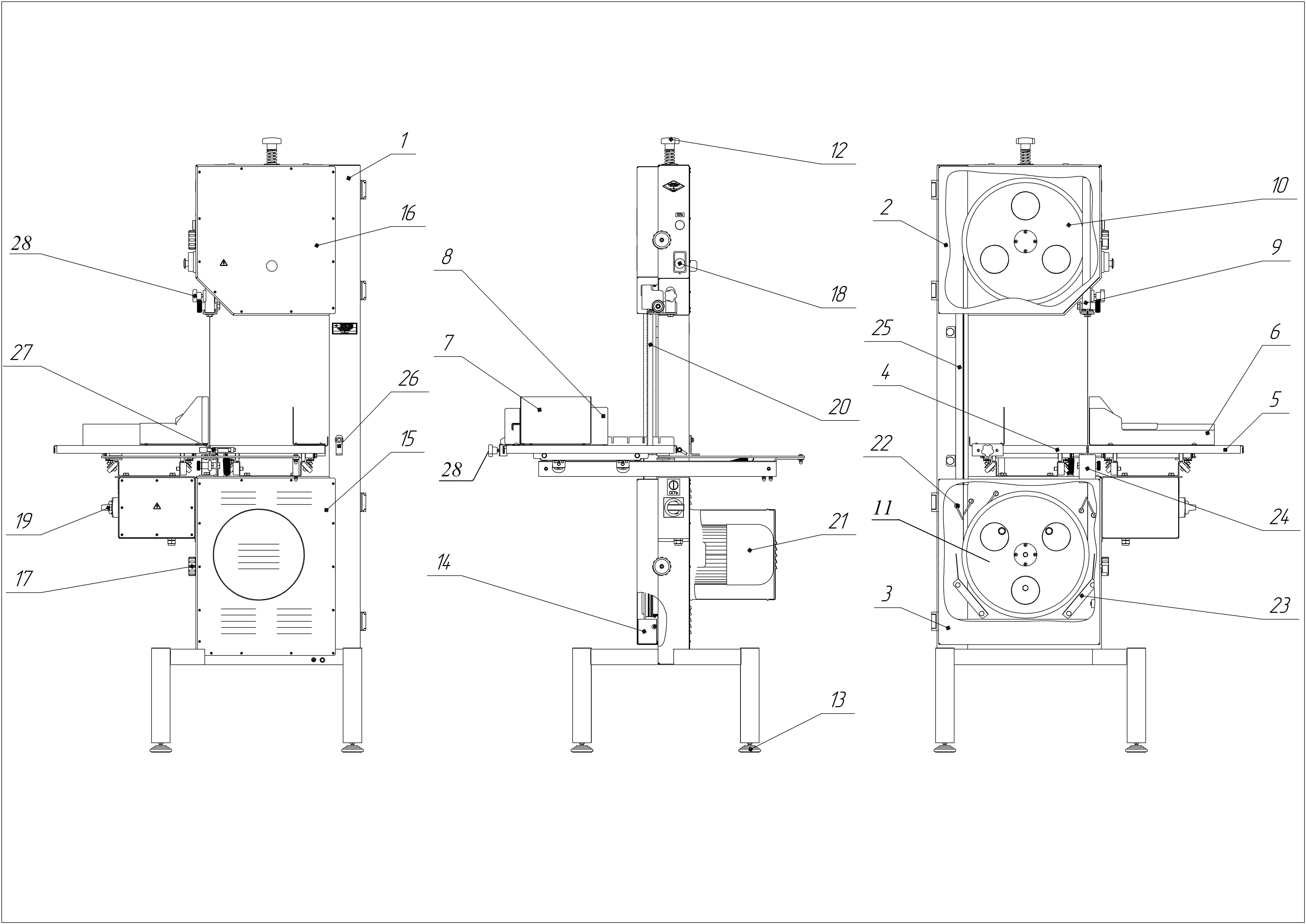
Ленточная пила БЕЛТОРГМАШ ПЛМ-400 предназначена для быстрого распила охлажденного и замороженного мяса, а также мяса с костями или костей на порции различной величины на предприятиях общественного питания, торговли, а также в производственных цехах гастрономических товаров. Модель оснащена столом с 2 независимыми подвижными секциями и ленточным полотном. Все компоненты выполнены из высококачественной нержавеющей стали.
Комплектация:
Особенности:
Дополнительные характеристики:
| Высота | 1990 мм |
|---|---|
| Глубина | 1025 мм |
| Ширина | 1015 мм |
| Вес (без упаковки) | 150 кг |
| Длина полотна | 3280 мм |
| Максимальная высота реза | 420 мм |
| Максимальная толщина реза | 260 мм |
| Материал корпуса | нержавеющая сталь |
| Мощность | 1.5 кВт |
| Напряжение | 380 В |
| Страна производства | Беларусь |
| Тип | напольная |