| Высота светового проема1800 мм | Назначениедля холодильных складов и камер | Родина брендаРоссия |
| Страна-производительРоссия | Типоткатная | Толщина80 мм |
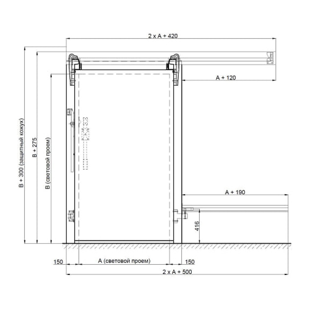
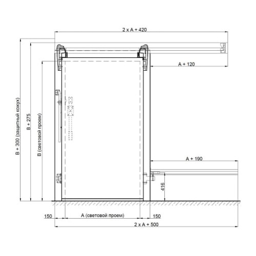
Откатная дверь ПРОФХОЛОД ОД ПХ 1000 1800 80 применяется для ограждения и теплоизоляции дверных проемов средне- и низкотемпературных камер любого объема, холодильных складов, терминалов и помещений с монорельсом. Модель устанавливается в местах прохода людей, провоза ручных тележек с грузом, механизированных погрузчиков и для стабилизации климатического режима в помещениях. Дверное полотно выполнено из оцинкованного стального листа с полиэфирной краской, рама - из листовой холоднокатаной стали с порошковой эмалевой краской, направляющие профили - из анодированного алюминия, уплотнители по периметру двери - из пористой резины EPDM с нанесенным слоем липкого армированного клея, защищенного протекторной бумагой, ролики - из пластика, ручки - целиком из оцинкованной стали с покрытием порошковой краской, теплоизоляционный наполнитель - жесткий пенополиуретан.
Особенности:
Дополнительные характеристики:
Опции (заказываются отдельно):
Внимание! На фото аналогичная модель другого размера.
| Высота светового проема | 1800 мм |
|---|---|
| Назначение | для холодильных складов и камер |
| Родина бренда | Россия |
| Страна-производитель | Россия |
| Тип | откатная |
| Толщина | 80 мм |